56㎡挑高小宅:粉色系+暖色系,走进这个家,真的有被治愈到了!
56㎡挑高小宅:粉色系+暖色系,走进这个家,真的有被治愈到了!
北欧风设计
每天给你分享一个案例设计


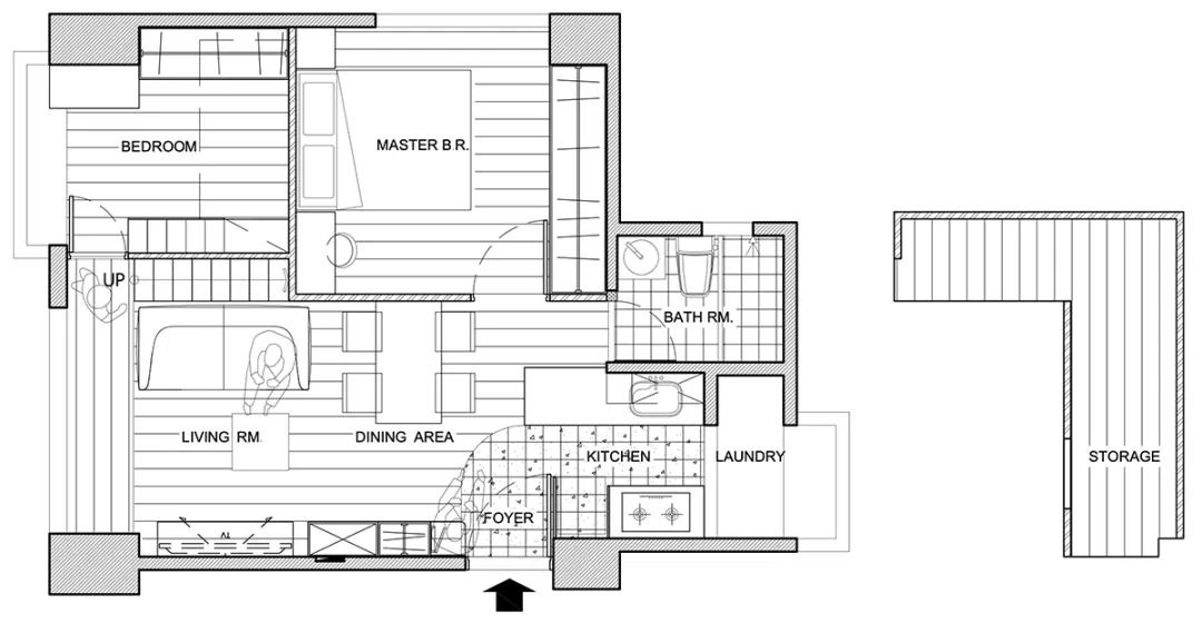
当典雅花砖区划了玄关之界
大门一侧则巧用鞋柜深度拉开穿鞋椅
花砖相续摊开L 形地板,利用其止滑能力适应料理区景况,更重新编排了过去紧凑的烹调动线,藉由移动冰箱、电器柜,加长了流理台面,让女屋主得以好好发挥烹饪实力;这也因此增加了能双向使用的中岛台面,予以孩子一同参与料理的机会。

向窗的方向看去,L 字灯条俐落领着视线


设计师擘划小面积的能力尽显于这面背墙上
















卫浴在卸除浴缸后,改变过去局促印象


