181.5㎡退休收纳宅:不仅有他的摇滚梦还有她的花艺道!
181.5㎡退休收纳宅:不仅有他的摇滚梦还有她的花艺道!
来源:空间设计(ID:kongjiansheji88)
轻奢风设计

每天给你分享一个案例设计

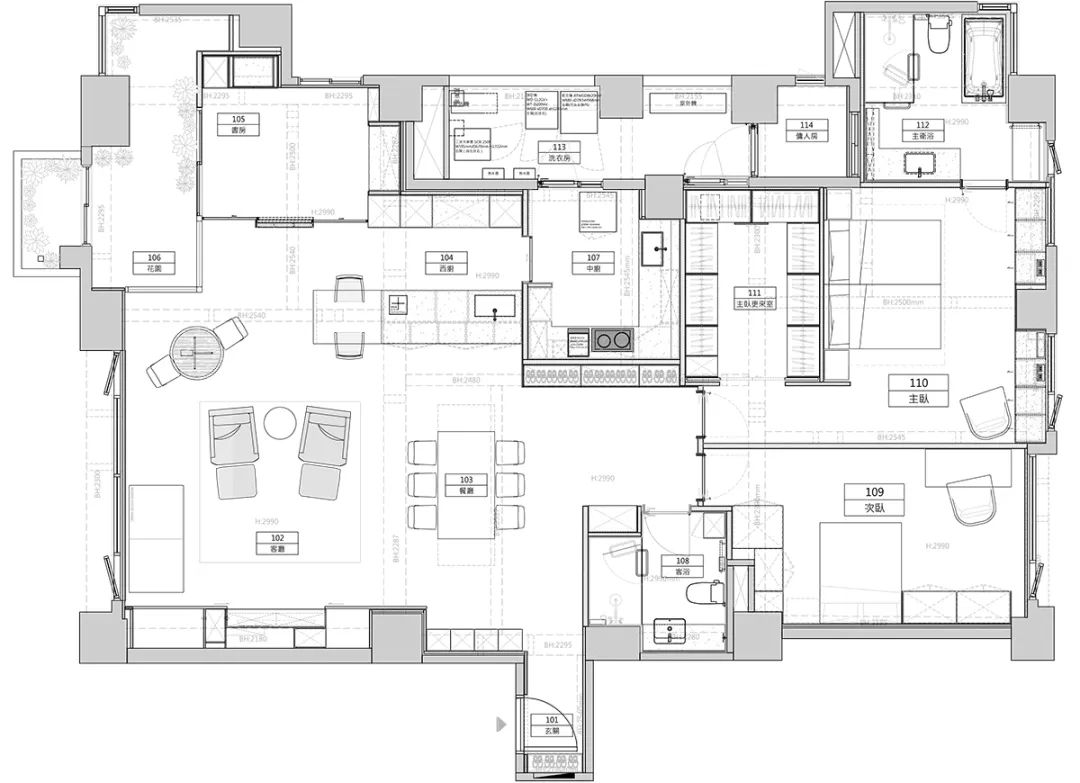
1. 玄关设计:
玄关为一径长型廊道,与采光明透室内相接
越过几步之遥,即见带有锈蚀样态落地立镜
以及由金属烤漆形构展示柜
陈列精致花器、艺术藏品
都可见女屋主多年悉心收藏之物件,流泄着独到品味

落尘区灯光从低侧打亮
情境式照明开启归返家第一刻
天花板从较为低矮姿态
顺随步伐前行,视线便渐趋敞亮无边
由铁锈镜框一角,静悄勾勒公空间

2. 客厅设计:
从客厅两张色彩不一单椅形塑
正能一窥夫妻俩相属偏好
因客厅面向河岸,保留大幅窗框
仅以卧榻临窗,能自在随心远眺青山流水


基底以灰铺写,漫延至电视主墙
为了保有收纳机能,立面加以简化之余
双门片以滑动方式推移,电视后方隐涵勃根第红
在线条穿引下,大面幅主墙有了独立感
同时有牵引一室脉动之主意象

非以沙发为客厅主量体,便无须顾及座椅靠背
反而单椅相互搭衬之廓形,后方通透花房正能扩大面积感
并且由缤纷花叶,掩映人文质调家景


3. 餐厅设计:
餐厅、客厅与厨房形成三角动线
因家中访客朋友多,女主人经常烹煮拿手好菜
除了分享美味料理,更喜与友漫漫聊天备料时光
为便于从厨房上菜,餐厅原考量于书房前侧
如今则定位在中岛台前方


4. 轻食厨房设计:
覆有勃根第红为立面,黑色石材为桌面
长达4 米中岛台,成为进入开放式厨房第一道分野
为了防止手纹,特意选择FENIX 面材
到了电视墙亦以此延续
往书房侧边,摆置高吧台椅
以镂空样式,覆有铁锈斑驳样式磁砖
以一式L 型台面作为收边

L 型台面使视线能直接穿越吧台
使三区交汇区域,显现层次鲜明
此地落于公领域中心,正是视线绝佳处
是女主人平时备料时,偏爱暂留处
因为视野流动
感官得以自在漫享穿梭,感受一片静好


5. 热炒厨房设计:
打造餐厨区时,许多细节涵纳女屋主过去生活经验
像是洗碗槽台面,高度刻意抬升15 公分高
为了便于晾置餐具,极小巧思满足日常

厨电设备一一量身订制
备有IH 炉、火炉、平板烤炉一应俱全
以予宴客所需
上下柜添加活泼亮橘色,将热情女性风采显化

6. 花房设计:
花蔓生出本应如是姿态
仿若以花语幻化出生命本该面貌
正显女性柔美存在,一株株花朵筛落光迹
使自然植生原貌,完美相映这栋河岸宅


花房位置原是一间客浴,沿用湿区优势
使浇水养花更加方便
以清透玻璃、推拉门与外为界
不仅引光入室,也扩大了阳台尺幅


7. 书房设计:
原书房无门片遮掩
但考量孩子归国有一隐私区可活用
选以花纹明显为木门片
如今是夫妻俩早餐吧、品饮红酒区
偶时是练团室,具有高弹性效能


8. 女主卧设计:
为引河岸美景,砌明亮暖意卧室区
临窗下方形塑一整列橱柜
上方保有大面窗景
仅以少许层架烘托绿意,并与亮红色围塑专属私领域



9. 主卫浴设计:
以干湿分离为主配置,延续卧房亮红色为底
木质与石材相融为浴柜
保留端景台面,使每一场所都有花与绿意相伴




10. 男主卧设计:
以大男孩房为题
砌建打电动、玩Bass、阅读之所
一抹蓝像是通往宇宙星际
属于男孩秘密色彩,并与灰面衣橱相互衬托



11. 次卫浴设计:
以极似星际大战画面之磁砖为淋浴间墙
想像洗沐可瞬间跳跃到异次元
并以荒烟之漠色形构全室,大大满足星际迷


(转载)

