208㎡现代混搭宅,让岁月沉静美好,这样的家,我承认我酸了!
208㎡现代混搭宅,让岁月沉静美好,这样的家,我承认我酸了!
来源:空间设计(ID:kongjiansheji88)
现代风设计

每天给你分享一个案例设计

1. 客厅设计:
L型窗洒漫进温煦暖光也带来充足明亮感
饶富诗意的灰阶流纹地砖
稳稳接住自丝柔百叶筛落的光线
将高楼层的景观视野收进眼底,营来日日舒心惬意




褐系木皮与格栅空间妆点电视墙
也修饰结构柱体,营造放大拉阔的视觉效果
木纹与石纹相偕共织人文雅致韵调
左侧设有开放展示柜便于屋主摆放家饰品,灵活变化出一隅端景


2. 餐厨设计:
餐厅厨区是相对光线较不足的地方
设计师认为与其勉强围塑出光亮感
倒不如顺势利用光线明暗对比,带出此区的沉稳调性
配有现代化电器柜,加强既有厨具动线的便利性
并以延伸出的吧台与吊灯,化解掉开门见阳台门户的风水疑虑



3. 主卧+ 更衣室设计:
进入卧房的转角处,是一方缓冲的主卧玄关区
以清水模涂料铺叙墙面,塑造男主人喜爱的东方质朴气息
地面延续灰调与自然纹理轴线,蔓延清雅质调

采棕色木质与驼色皮革为床头区立下稳敛基调
泛起金属光泽的镀钛饰条穿插其中
临窗边设置一字形长桌作为主人办公阅读区
搭载波浪状的纱帘与圆弧天花,注入柔和圆润感



视线转向,映入眼帘的是有如镀上一层雾金
飘渺柔美之感的主视觉墙,右侧佐入镶上灯带的大圆镜
除了是打理仪容所用,也运用圆镜划出几何线条

顺梁而下的内凹处,挂上壁挂式电视
离地面约45 公分处设置灰系大理石平台
好让小朋友可暂时拉张矮凳,坐在这里写写功课
左右两侧分别是错层设计的层板架与铁件+茶玻的饰品柜

驼色皮革后方为隐藏式的独立更衣室
出色海军蓝具有画龙点睛的跳色作用
也点出淡淡的慵懒度假氛围
清水模涂料铺叙立面配上白色烤漆铁件层板
前半段是盥洗台+工作平台,后半段则是收纳冬夏藏衣与配件区



4. 次卧设计:
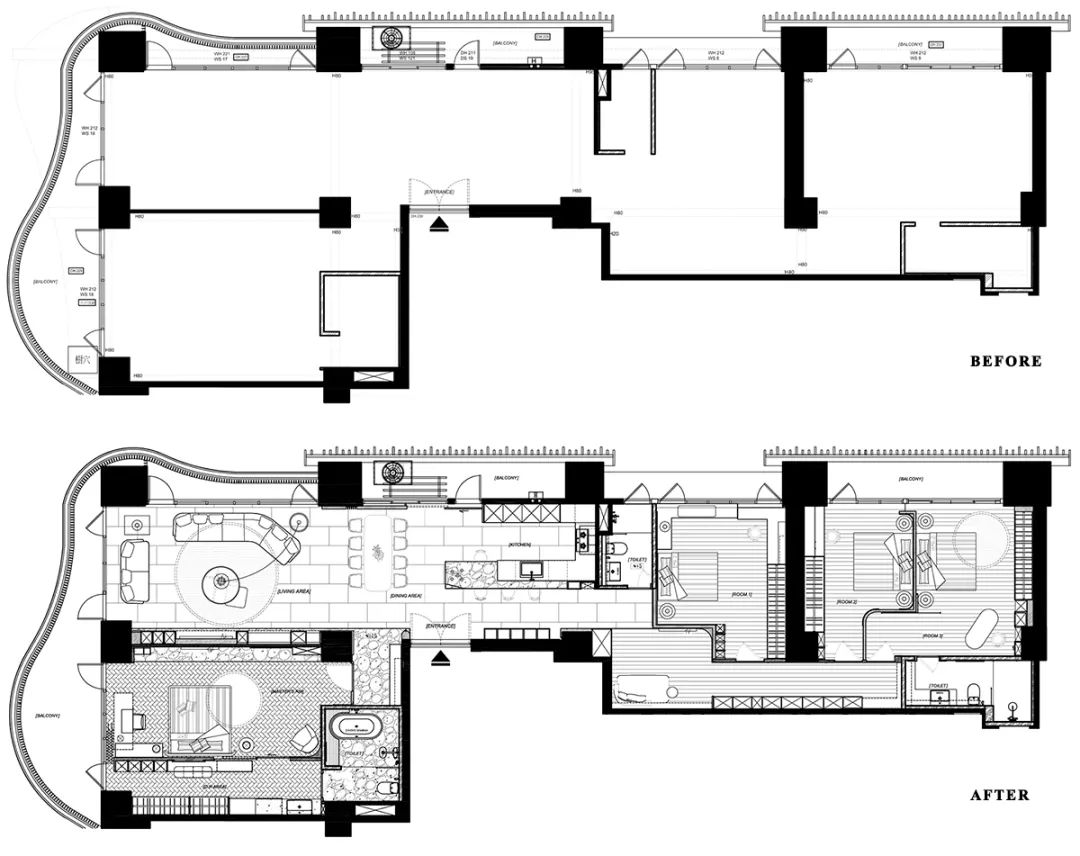
主要配置于全室的右半部
从平配图前后对照可看出特地隔了一道墙与新增出入口
由2 间次卧变成3 间,皆铺上温润的木地板,延续一贯的轻暖轴线


流曲弧线的天花呼应圆润感的长虹玻璃轻隔屏
墙面采浅粉雾感的壁纸铺陈,透出轻盈质感
靠近床尾处配有整排白系衣柜,足以收纳海量衣物



格栅装饰板材映现柔雅情境,形成安稳恬适的睡眠区
简约造型的壁灯悄悄点亮角落一隅,呈现温馨而高雅的情调
尽管这间是相对较小的次卧
但在细心梳理下仍以木作+茶玻规划出简易书桌结合收纳柜



5. 游戏间设计:
利用格局狭长特性而产生的过道区
打造为儿童专属的游戏区,取其水滴状意象与格栅用料
丰富视感,天花部分刻意采直线型木纹沟槽,使拉长的效果更加明显



6. 卫浴设计:
铺设止滑砖加强防滑的安全性
宽阔镜面则提升亮度,玻璃隔屏划分出基础干湿分离的配置


(转载)

