这个巴西海边别墅的开窗和开门的方式太酷了!
这个巴西海边别墅的开窗和开门的方式太酷了!
来源:空间设计(ID:kongjiansheji88)
热带生活设计

每天给你分享一个案例设计

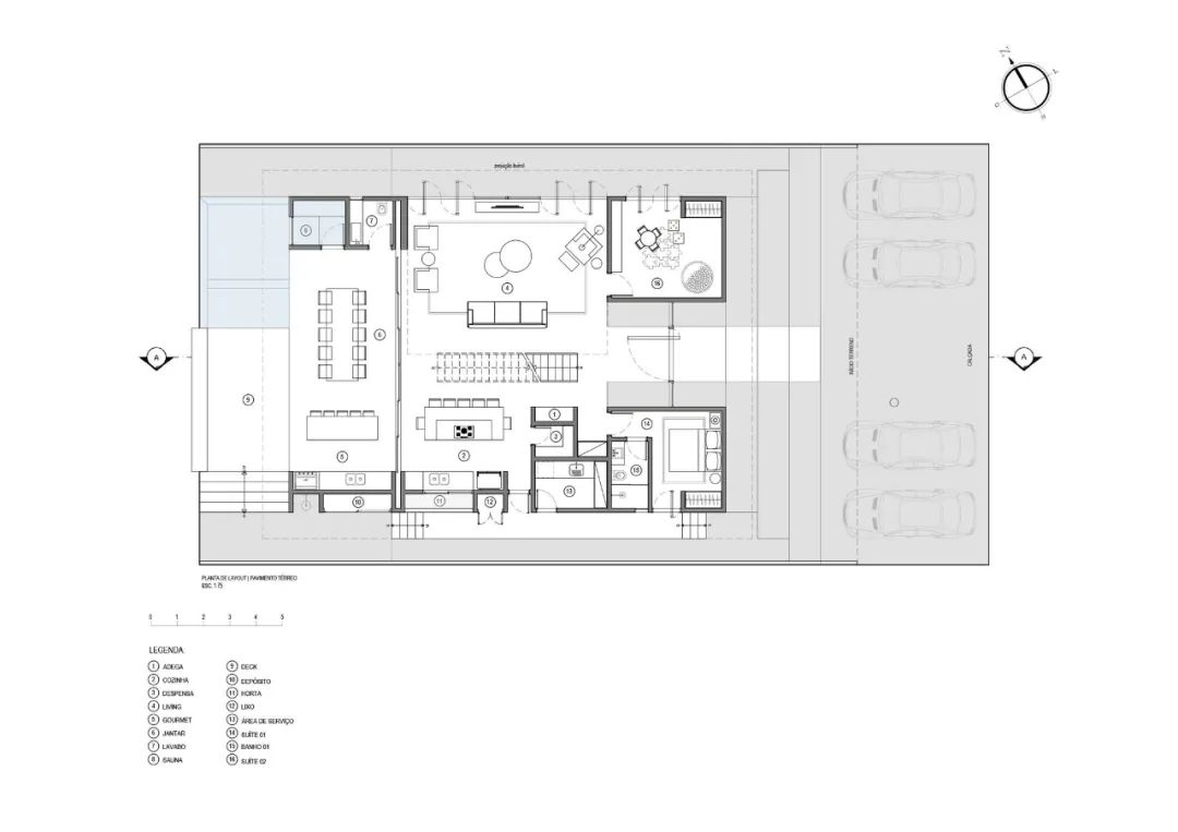
Guaecá Residence 位于圣保罗北部海岸
在海滩上占据了令人羡慕的地块
这座两层楼的住宅旨在容纳两个家庭
由Belluzzo Martinhao Arquitetos创建
占地 400 平方米
建筑师整合了公共空间并优化了七间私人套房
以满足双重房主及其客人的需求
除了协调室内的广泛项目外
住宅的外部还成为互动空间的延伸
主露台设有游泳池和阳光甲板
周围环绕着优美的绿色山脉
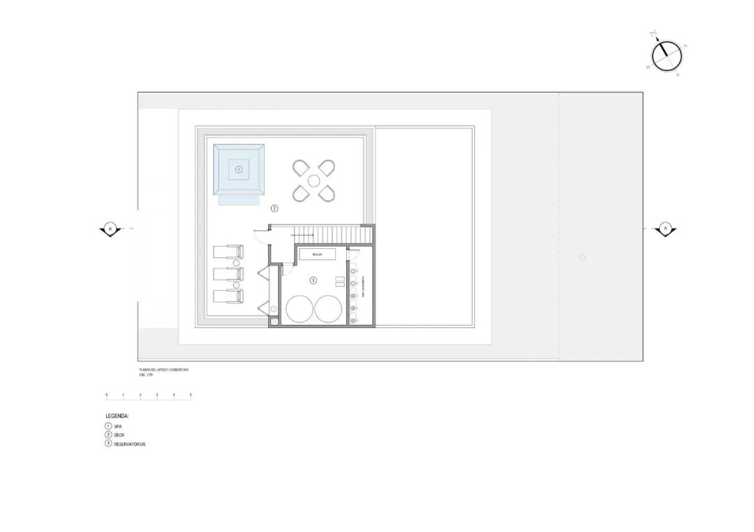
而屋顶露台则提供水疗中心、火坑和远处的海景

在正门,慵懒的棕榈树懒洋洋地躺在阳光下
躺在郁郁葱葱的绿色地被植物床上
石制品和板条木板给家庭带来舒适的吸引力
穿孔的铝板覆盖着稳定的铁锈般的耐候颜色
这种材料可以抵抗来自圣保罗北海岸的海风


整个房子的构造非常奇特
以木格栅栏为主的外立面
为其赋予了一种独特的秩序感
其外立面的开合方式非常丰富



一个透明的玻璃栏杆围绕着最高的屋顶线
巧妙地暗示着那里的休闲区
日光浴室、水疗中心和社交火坑区等待着这两个家庭和他们的客人
客厅设计

橙色色彩运用在大客厅设计中
营造出充满活力的视觉温暖感
橙色条纹的地毯与沙发上的靠枕相得益彰
一对橙色皮椅面对两个浅米色对应物
以平衡休息室家具布局

双高起居室在房屋的两层之间建立了联系
双高空隙还提供了更好的空气流通
并接受了自然光的流入

木质天花板设计为高耸的房间增添了热带风情和舒适感
丰富的木色对素白的墙面装饰有视觉上的温暖效果
小小的吊灯在高耸的广阔空间中优雅地摇曳

独特的木制咖啡桌占据了宽敞休息室的中心位置
两个现代花盆和众多小雕塑增添了迷人的装饰
在两张现代软垫躺椅后面,一辆酒精饮料车待命等待欢乐


玻璃楼梯设计通向住宅的私人区域
包括两间主卧室套房和三间额外卧室
屋顶露台还拥有最佳的山景和海景

在开放式客厅的沙发背后
厨房是现代的木制设计
带有对比鲜明的黑色厨房岛




厨房用餐区直接延伸到带露台的露台上
户外躺椅朝向壮丽的山景


一个小型游泳池与阳光甲板并排排列,用于降温
屋顶还设置了太阳能电池板
使空间资源利用更环保



(转载)

