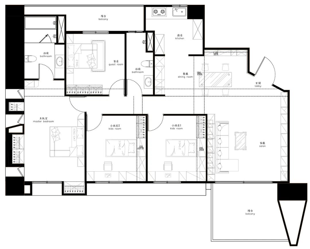
148.5㎡简约木调风,一家四口很强的收纳宅!
148.5㎡简约木调风,一家四口很强的收纳宅!
来源:空间设计(ID:kongjiansheji88)

每天给你分享一个案例设计

1. 玄关设计:
本案以特殊斜角开启玄关落尘区
为使公领域极大化,转化门面侧边斜角
将通透感回归亲子活动范围
以整侧壁面浅木纹洞洞板为随手挂衣置物处
更借不对称、高低错落浅型层板
深化实用收纳

再将转角电箱以一式隐藏门片包覆
修饰了入口,与入门左侧上下系统柜相呼应
近看是木纹为主色,远望端看则是白色柜体为主
流动出慢居日子的小清新

2. 客厅设计:
巧引天花高低差,以一低梁为界
成为玄关餐厅与客厅之间隐形分界
低矮处隐入吊隐式空调
活用空间特质又能兼备收纳特性

电视墙筑一列白色与木质共构
蕴生微小开口柜子,形塑丰富层次
更悉心从上下柜、电器柜皆落在深度43 公分
使动线毫无转折,不致产生危险碰撞



主墙以沉稳灰系与浅木纹理相应
采用15 公分大形崁灯为灯光设计
不仅范围广又有均光效果
于沙发背墙,打造一大面积连续柜体
为了淡化高柜可能的沉厚样态
以极浅木纹为基底,穿插不规则层板
罗列看似一致却相异之多层次书墙

女主人说道「我们很喜欢共读时光,
一眼随即浏览的开放设计
拿取书籍更为方便,一整排书墙
亦是我一直以来很想实现梦想家」

3. 餐厅设计:
在亲子时光中,仍想保有夫妻片刻小酌
对视彼此谈天品啜小酒,餐厅引入酒吧式氛围
橱柜勾勒一道藏酒区
以厨房口为中介,两侧形构L 形柜面
创造不同收纳,满足餐厅兼具多功能使用
愈接近私领域,则以深木调为主,一展色彩层次性

选择黑与金材质为灯饰,看似打破了木质调
其实正以冲突之美,将木纹理推升至更具个人特色
也因孩子正处学龄前阶段
无论桌游、涂鸦,仍需大人陪同
餐桌便成了多功能桌和工作区




4. 主卧设计:
建筑体内含特殊墙洞,正巧落在主卧房
墙洞深度约为70-90 公分不等
为扩大面积,便将衣柜隐入墙洞
但因原地板不平整,便重新拉基准线,置入吊挂式双层衣柜

特别选用抽屉式床架,补足吊挂式衣柜之不足
更以浅大地色描摹门片,并流动至床背墙双色拼接
再置入与屋主高度相衬壁灯,满足睡前之阅读片刻

将梳妆台设置于主浴外转角处
恰好与侧旁大柱掩映
吊挂全身镜时,正好化为开放式更衣室

5. 客房设计:
延续满室木调,添入更多暖灰色
成为现阶段收纳备用
亦为偶时长辈到访时留宿之房间


(转载)

