小户型yyds!看人家这套35㎡纯白风小公寓,1㎡都不浪费!
小户型yyds!看人家这套35㎡纯白风小公寓,1㎡都不浪费!



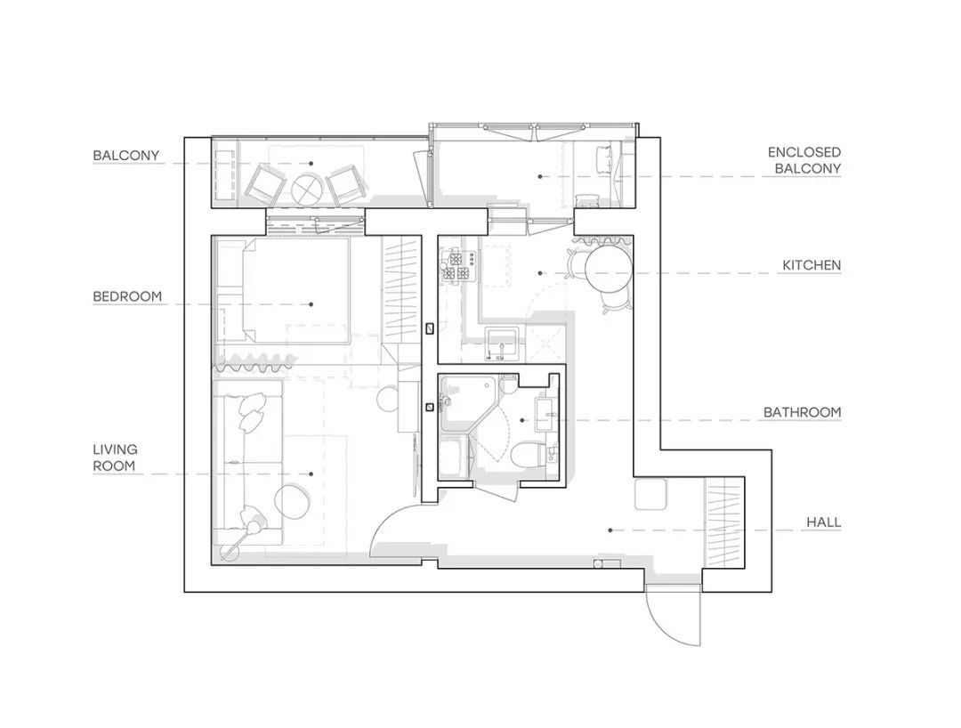
在宽敞的住宅入口
一面镜面墙和一个橄榄绿色的立方体坐垫
座位和镜子是一个很有用的梳妆点
可以帮你穿上鞋子
在冲出门前最后一分钟检查一下自己的仪容

整面镜子扩大了走廊一侧的视野
同时一个小的入口架子成为一个方便放置钥匙和手机的位置
一盏小灯为书架增添了柔和的光芒,在天黑后作为走廊的夜灯

2.客厅设计

这套舒适的住宅,以柔软的灰色墙壁
一个灰色两人沙发,和一个配套的软垫凳子
装饰画点缀整个空间使其形成一个温暖的视角

黑色的边桌和黑色落地灯相呼应
围绕着沙发的一端
形成了一个舒适实用的阅读区
有纹理的小地毯在木地板中
营造出一种淡淡的停顿感

3.卧室设计

客厅开关的窗户一端
可以变成一个舒适的卧室角落
坚实的白色平台床底座
在视觉上分隔了卧室区域和休息室
并提供了一个大的收纳存储空间
橄榄色枕头和配套的靠垫增添了柔和的色彩

床头柜和主衣橱形成了一个单独的立方体
可以用门帘隔开
窗帘是透明的,所以当卧室关闭时
从窗户进来的自然光仍然落在休息室上

床尾开放式的置物架是卧室立方体中白色衣柜的装饰性末端
书架上放着极简主义的藏书和几根朴素的蜡烛
漂浮的梳妆台被折叠在卧室立方体旁边
形成一个带有大镜子的梳妆区

4.餐厨设计

厨房餐厅与客厅/卧室隔着入口大厅
厨房是一个紧凑的房间
开放式帮助厨房空间感觉更大、更明亮

一张小餐桌塞在房间靠窗的角落里
现代的白色餐椅配有橄榄色的坐垫
一个小餐桌吊灯迷人地锚定了迷你餐厅的位置



5.阳台设计

这套公寓有一个很长的阳台区域
为了更好地利用这个额外的空间
室外阳台面积被减半,以扩增室内面积空间
可以在各种天气下容纳小年轻的房主

封闭的阳台是一个舒适的阅读角落
也是一个宝贵的存储空间
内置阅读椅的底部有一个隐藏的储物抽屉
而头顶上的浅橱柜一直延伸到天花板
狭窄的货架增添了装饰的元素
6.浴室设计

从梳妆台后挡板到浴室墙
垂直的地铁瓷砖覆盖了整面墙
一个超窄的毛巾加热器
和一个织物洗衣篮挤在中间一个狭窄的角落里
角落的淋浴间清除了穿过小浴室的走道
同时提供了足够的收纳空间
并纳入橄榄绿色的电器单元包含洗衣机和烘干机
上面整齐地隐藏着洗衣用品


(转载)

