89㎡灰暖微光住宅:镂空黑+木色格栅客厅太养眼!
89㎡灰暖微光住宅:镂空黑+木色格栅客厅太养眼!
来源:空间设计(ID:kongjiansheji88)
现代风设计

每天给你分享一个案例设计
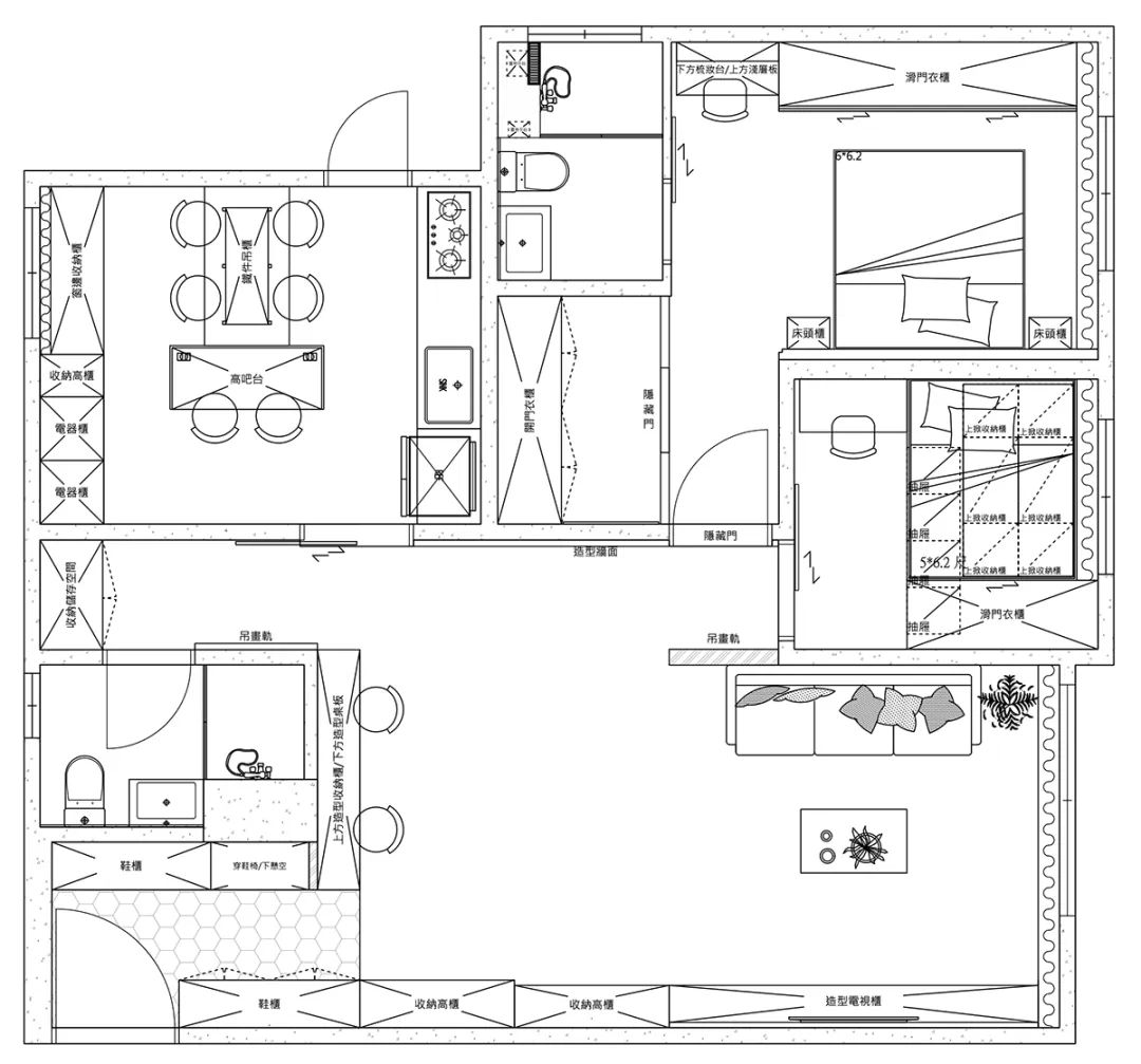
这套住宅位于中国台湾
面积:89㎡(套内)
格局 3 房 2 厅 2 卫
居住人数:2 大 1小
由 边间设计 设计

1. 玄关设计:
入门玄关出以雾灰色花砖为落尘区
隔断以整面活泼六角砖形引导步履
两侧灰色柜子铺叙全室立面开端


灰色让归家心情逐渐沉稳
一盏微光与浅台预留了端景
与后方暖木色的细木格栅,打造出挂衣区
同时交织出暖暖光晕,侧旁落下座椅高度
以猫抓皮覆面,高效形成穿鞋椅与柜体的紧密连动


2. 客厅设计:


进入客厅延续玄关灰阶色
间隔了一片带有镂空黑框景的木色格栅
接续又缓变为黑与灰石纹共构之主墙

公共空间选有重量感的深色地板
才能承接住立面变奏之强度
一道木格栅能使木纹理调和暖润感,释放原始调性
柜门隐于格栅线中,使整体线条保有律动感,同时兼具收纳功能


落地窗引入净白日光
恰好打亮深色柜体与灰石纹砖
形成强烈对比,上方低梁加以修饰
方方面面皆推升了客厅保有灰调性
亦覆有温暖姿态


3. 餐厨设计:
别于一般开放性餐厨区
屋主喜烹饪,偏爱独立式餐厨
为此变更了原格局,将厨房与后方房间相连墙面拆除
使空间更形开阔,女主人烹饪备料时,能与家人互动

设计师说道「玄关左侧壁面,选用灰阶与橘色系错落
图形拼贴大小不一,视觉富有灵活度之外
我们汲取橘色元素,联想至欧式古堡意象
便藉由黑铁件砌一道拱门与层架端景
另一侧引入屋主偏好的乐土后制清水模为墙
以抽象语汇为餐厨区展开主题。」

打造一道高约105 公分清水模色系板材为中岛
与木质餐桌相对,好友来访时,能与主人一同聊天小酌
中岛四周都隐有犹如壁龛式设计
能摆置酱料、杂物、随手阅读书籍等

女主人拥有咖啡杯测师执照
经营自创咖啡品牌
侧窗小平台正是她研发、商品拍摄处
应用白系量体,使餐厨规划妥善有效率

4. 主卧设计:
一反跳色壁面,走入主卧仿佛潜入一段静心境地
全室覆满了奶茶偏灰色系
同时也是连动两区之主场
一滑门可进入主浴,另一则是进入更衣室

因为原主浴门是接系于更衣室之后
为了契合使用习惯,也恰好不避讳厕所对床之传统风水
便将主浴入口从更衣室之侧,改动到房内

更衣室区域小,将梳妆台设置于外
再另辟一道滑门衣柜与之相映
皆以白色铺叙,收敛量体感,将卧眠区回归沉稳舒心


5. 主卫浴设计:
喜欢旅行的夫妻俩
将记忆中喜爱卫浴壁龛提出
设计师便于淋浴区形塑了备品收纳
隐入壁面,也加深花砖特色

6. 儿童房设计:
以高度收纳为主题,采取架高床面手法
备有上掀式与抽屉式柜体
能绝佳承载未来不同成长阶段衣物量


7. 次浴设计:
拣选特殊凸面铁道砖
在一片白色中,缀饰灰色砖
使卫浴主墙显现丰富感,亦与灰面地板相衬



(转载)

