89㎡北欧治愈宅:抹上绿系小清新,改造35 年公寓!
89㎡北欧治愈宅:抹上绿系小清新,改造35 年公寓!
来源:空间设计(ID:kongjiansheji88)
简约风设计

每天给你分享一个案例设计
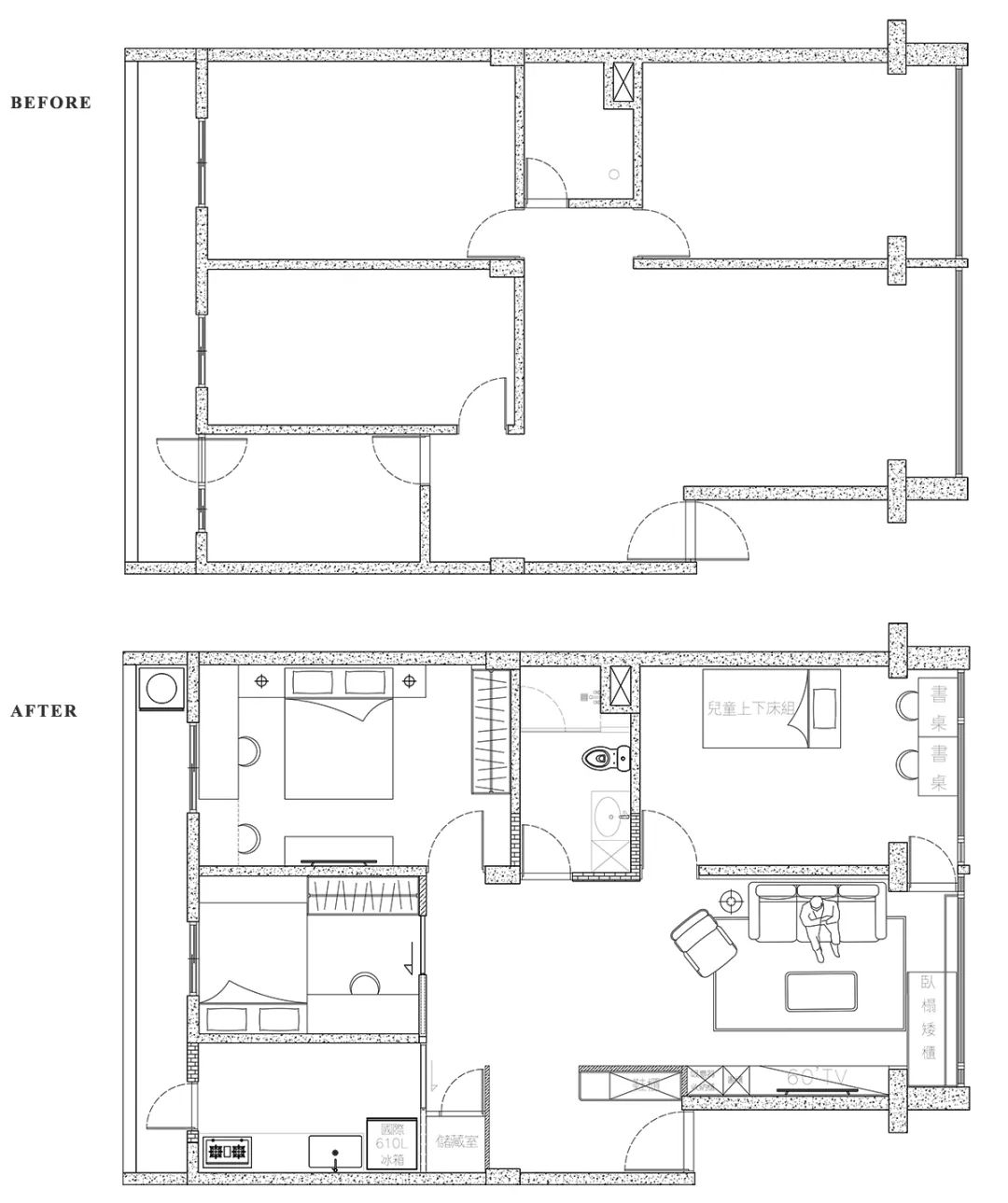
这套住宅位于台北
面积:89㎡(套内)
格局:3 房 2 厅 1 卫
居住人数:2 大 2小
由 橙逸空间规划 设计

1. 玄关设计:
蕴含植物意象的长方花砖
以浓淡有致的深绿、浅绿错格排序
牵引内外,勾勒春来花开的大地风采
营造都市花园概念,形塑一幅古典雅致的迎宾端景

拉出一道新隔墙并结合顶天长柜
井然有序收拢鞋履
轻浅木色门片嵌入暗把手
平整视觉一致性
以纵长地形围塑出落尘区
阻绝外界尘嚣回归宁谧寓所

2. 客厅设计:
随着步伐前进,旋身右转
映入眼帘的是通透明朗的客厅
延续空间主要的抹茶绿色调,大面积铺叙整面墙
赋予耳目一新的舒心感受,弥漫柔和恬雅与静谧自在气氛

灰阶司特曼艺术涂料
顺着横梁而下刷出泥朴质韵的电视墙
略带似流纹、似云朵的肌理,增添灵动感
沿着内凹的特性于上加设层板,于下设置一字形抽屉+平台
相依而序的系统柜同样镶入此凹面,提升居家的收纳量能




3. 厨房设计:
撤除先前破旧不堪的污损厨具
褪去斑驳旧砖,铺上白净铁道砖
增设吊柜便于收拾厨房的生活杂物
下方以多功能层架+抽屉,打造新颖现代的便利厨房


4. 主卧设计:
与公共领域一样同属绿系打底
与清爽的白润透视感交织成睡眠空间
盎然绿植画龙点睛,以相似语汇延伸贯穿整体风格
腾出不受限的空间让屋主可不必拘泥于特殊尺寸
自行采购需要的衣柜与书桌等配件

俐落收边的线条,表现简单、不繁复的型态
广阔包容性百搭各式选材与软装
床头以圆润弧形修饰,削减锋锐之气
迎来柔雅视感,一旁观音莲再添一笔鲜活感

5. 次卧设计:
主要是男主人作为练琴、读书的地方
必要时可变通成为客房
漆上浅米色的主墙与可可棕色木纹柜搭衬
上方吊柜提升藏纳功能之外也隐形包覆住横卧的大梁
弱化屋梁量体的压迫感受
梁下辅以机能性十足的洞洞板
提供居者随性吊挂小物与配饰

6. 儿童房设计:
象征自由辽阔的天空蓝为主色
虽然目前两位小孩同住此房
考量日后成长独立需要各自隐私空间
预先配置好空调与管线,并多开了一扇门
留作未来新增隔墙、将房间一分为二时,可妥善运用及调度

7. 卫浴设计:
拉阔纵深长度的卫浴
有更充足的余裕施作干湿分离的设计
铺上止滑防水砖,确保日常盥洗时的安全
采用黑灰白色系的六角花砖与素面砖
两相交错搭配,营造多变趣味样貌
垂直立面以内凹平台呈现
争取摆放备品、毛巾等物品的空间


(转载)

