112㎡混搭住宅:捻一缕南洋的风,还带着点复古,时尚极了,年轻人最喜欢!
112㎡混搭住宅:捻一缕南洋的风,还带着点复古,时尚极了,年轻人最喜欢!
南洋风设计

每天给你分享一个案例设计
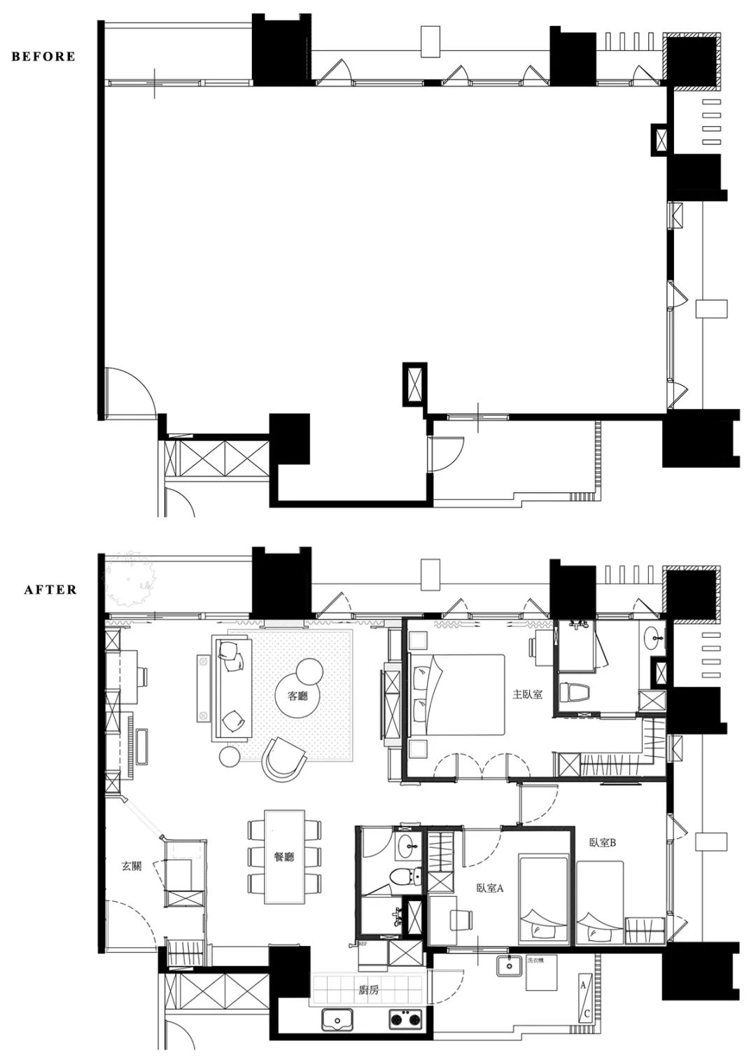
这套住宅位于台北
面积:112.2㎡(套内)
格局:3 房 2 厅 2 卫
居住人数:2 大 2 小
由 一与设计AAND Studio 设计

1. 玄关设计:
属于陶砖的温暖径自向屋内探进
斜角动线导向日光漫溢的窗景
将视线带往外头蓊郁山景
化解外玄关对门问题,争取屋内隐私
交界远近之间,松岭青自踢脚板蔓延至腰墙
壁纸接续推开一面植物图腾墙
恰似撷取了山色,让虚实有了对应

关乎进门后置鞋挂衣等一切所需
皆隐藏在右侧线板门中,以步入式衣帽柜+鞋柜
净空进门视野与路径,而相依鞋衣柜旁的圆拱门
则通往储藏室,作为行李箱等大型物件的归处
2. 客厅设计:
步入屋内,浓郁泰奶橘对比了青山远景
木梁犹如肋骨撑起了偌大舱室,形塑自在活动的客厅
尽管电视墙因为让渡部分空间予主卧
局部遮盖了原本对称窗面,圆角窗框依旧勾勒
以框景手法整合大小窗
沙发也顺势避开梁下位置,灵活平衡了视觉

米棕电视墙景跳脱泰奶橘的热情、米白的优雅
占据了主景目光
涂料素朴质地恰似腾腾云雾,轻轻凿入两座圆拱壁龛。

沙发后矮柜定义了多功能角落
成为一家大小阅读、游戏的交谊基地
相较常见的书墙设定
反是以吊柜腾出直立式钢琴
画作或活动式家具的展列之地
部分开放的收纳配置,亦相佐了藤编门板
创造轻量视觉效果、注入清透呼吸感


3. 餐厅设计:
当视线循着木梁主干延伸,投向餐厅场景
别于客厅配色比例,米白线板反而拉高了占比
正是为了解决采光薄弱现象
而餐边柜的背板与厨房防溅板也选配浅白磁砖
借此推展空间深度

眼前对称框景即是建立在玄关处的储藏规划与客浴隔间
还有厨房入口与餐边柜,重塑左右均衡的空间关系
整体细腻之处,在于协调格局的手法
尽管厨房门较为狭窄,又遇上柱体紧邻
亦利用圆润门框取得平衡

就连卫浴隐藏门也对应着另一侧
未来若是有所需,即可沿着墙上框线
向内推出一方可摆放神明桌的隐藏预留地

4、壁龛&过道设计

壁龛为了与出入口和窗框做出区别
设计上刻意降低柜体高度、加强拱门弧度
并于四周嵌入线灯,以幽微光氛点亮展示机能
电视之上门扇
亦是运用墙体厚度的闲置余白,使厅区杂物各得其所

5. 主卧设计:

每当孩子睁开双眼的第一件事
就是跑向主卧房找爸妈
基于如此亲密的亲子关系,特别以对开门作为房门
就像张开双臂迎向儿女
而其开门旋转半径也较小,由此争取过道余裕

步入房内,松叶绿伴着简约线板架构了床头
而回应屋主诉求的阔绰空间与走道
卧房经由外推床头墙,打开舒适面积
然而,因挪移墙体而显露的压床屋梁
则透过水平向线性光释放压迫感
接续以斜角收高天花
并刻上沟缝线条,弱化突兀结构体


6. 卫浴设计:
承接主卧安稳平静的绿色调
带有手刮纹理墨绿涂料相续渲染着主卫浴
与六种砖面搭出复古又华丽欧系风情
揉入活泼水磨石、典雅花砖、温润木纹砖、拼贴马赛克
及渐层手工砖,确立各机能彼此独立却又相系的一体感


座落公区的客浴同样采用四种砖款铺叙
属于陶土的自然粗朴表现于壁面涂料与地板地砖
另佐上乡村风花砖
点亮视觉焦点,在在强化了欧美庄园主轴

来源:空间设计(ID:kongjiansheji88)
(转载)

