百年老宅改造,伦敦低能耗住宅
百年老宅改造,伦敦低能耗住宅

© Christian Brailey

© Lorenzo Zandri

© Christian Brailey

© Christian Brailey

© Lorenzo Zandri

© Lorenzo Zandri

© Christian Brailey

© Christian Brailey

© Christian Brailey

© Christian Brailey

© Lorenzo Zandri

© Lorenzo Zandri

© Lorenzo Zandri

© Lorenzo Zandri
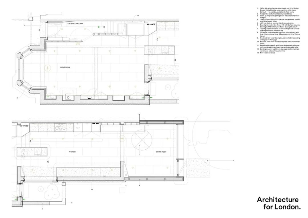
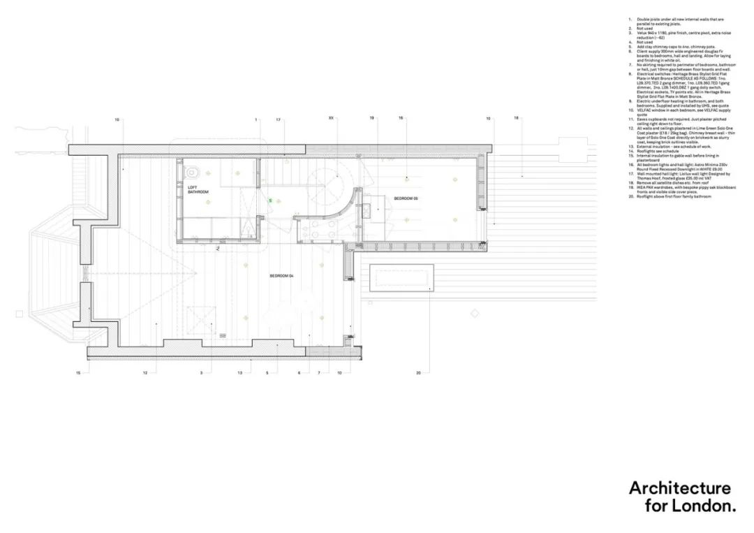
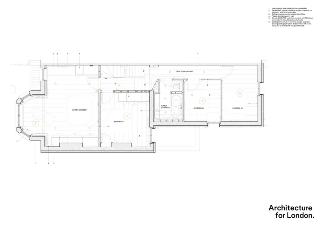
项目图纸

首层平面图

二层平面图

三层平面图

细节详图
项目信息
建筑设计:Architecture for London
地址:伦敦,英国
项目年份:2021
建筑面积:190平方米
摄影师:Christian Brailey、Lorenzo Zandri
(转载)

