设计 | 极简白+条形格栅,成就唯美别墅设计!

Fran silvestre arquitectos 的设计作品大家应该不会陌生,那些以极简、纯粹为追求的设计,在感官、品味和思想上给人简单整洁的艺术感。
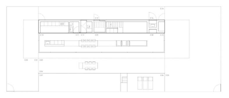
项目位于西班牙瓦伦西亚,建筑面积为 285㎡,共二层,带一个院子,建筑外立面一层做玻璃幕墙,二层的立面运用铝材料打造格栅外罩。设计师巧妙的将条形格栅与建筑融合,这样不单单可以起到装饰作用,也具有一定的遮阳功能。这样的格栅设计在视觉感官上还能够形成明显的阴影变化。上下层的立面材料差异,使得下层轻盈开放,上层厚重封闭,打造出悬浮叠加的体量感。从外看向房子,围墙与上层外立面形成视觉连接,既美观又保证了私密性。夜晚灯光从室内透出,经过格栅的过滤,产生了柔和细腻的光感。

一层作为起居空间,面向泳池一面是大面积玻璃移门,使室内空间向外开放,在视觉上也起到增大空间面积的效果。客厅墙面与天花板都采用极净的白色,顶部边沿处做暗藏式灯带设计,给空间增添照明与氛围,照映在灰色的水泥自流平地板与台阶上都显得不那么不冷峻暗沉了。餐厅与开放式厨房利用空间既有的特点来设计,大面积的白色橱柜搭配灯带,满足日常收纳和置物之余,又能使空间显得大气而完整。

▸厨房电器选用的是 Siemens y Liebherr 品牌
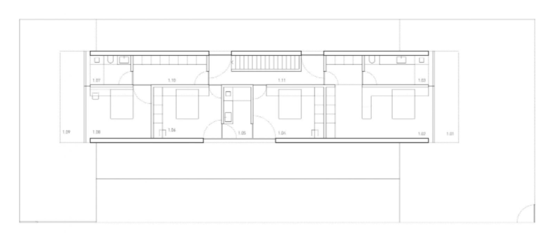
全白色空间更有效地反射光线让整个空间看起来更明亮。二层的卧室,是一个静谧美好的专属世界,整体空间的调性现代而简约,没有多余的繁琐装饰,呈现出简洁大方视觉效果。天地墙清一色的纯白色调,让居室看起来格外的整洁明亮。阳台结合格栅立面成为一体式的栏杆,使空间质感自成一体。与卧室配套的卫生间延续了极简白的设计风格,白色的墙面、柜子、洗漱台,干净清爽,使用的水龙头与马桶分别是Inspira和Tres Max的品牌。通过底层玻璃门的开合,可以做到内外空间的互借与衔接,使得外部与室内存在较好的互动。白色的格栅作为房子与街道的分界线,避免彼此的干扰。泳池边的露台区域被合理利用,摆放着白色系的户外沙发、单人躺椅,还布置了室外用餐区,给家庭空间提供了一个额外的社交欢聚场所。设计有的时候适合做减法,运用少量的设计语言,更能表达出深刻的设计内涵。
▸平面图
·设计师介绍·

▸Fran Silvestre
Fran Silvestre 1976 生于西班牙,埃因霍温理工大学毕业后,在阿尔瓦罗·西扎的工作室工作,并深受其设计风格影响。2005 年成立个人设计事务所,他的设计常以白色极简为基调,却总能打造出令人惊艳的作品。(转载)