66㎡圆弧玄关打造宁静舒适的家,上班再疲累都能被治愈!
66㎡圆弧玄关打造宁静舒适的家,上班再疲累都能被治愈!
日式风设计

每天给你分享一个案例设计
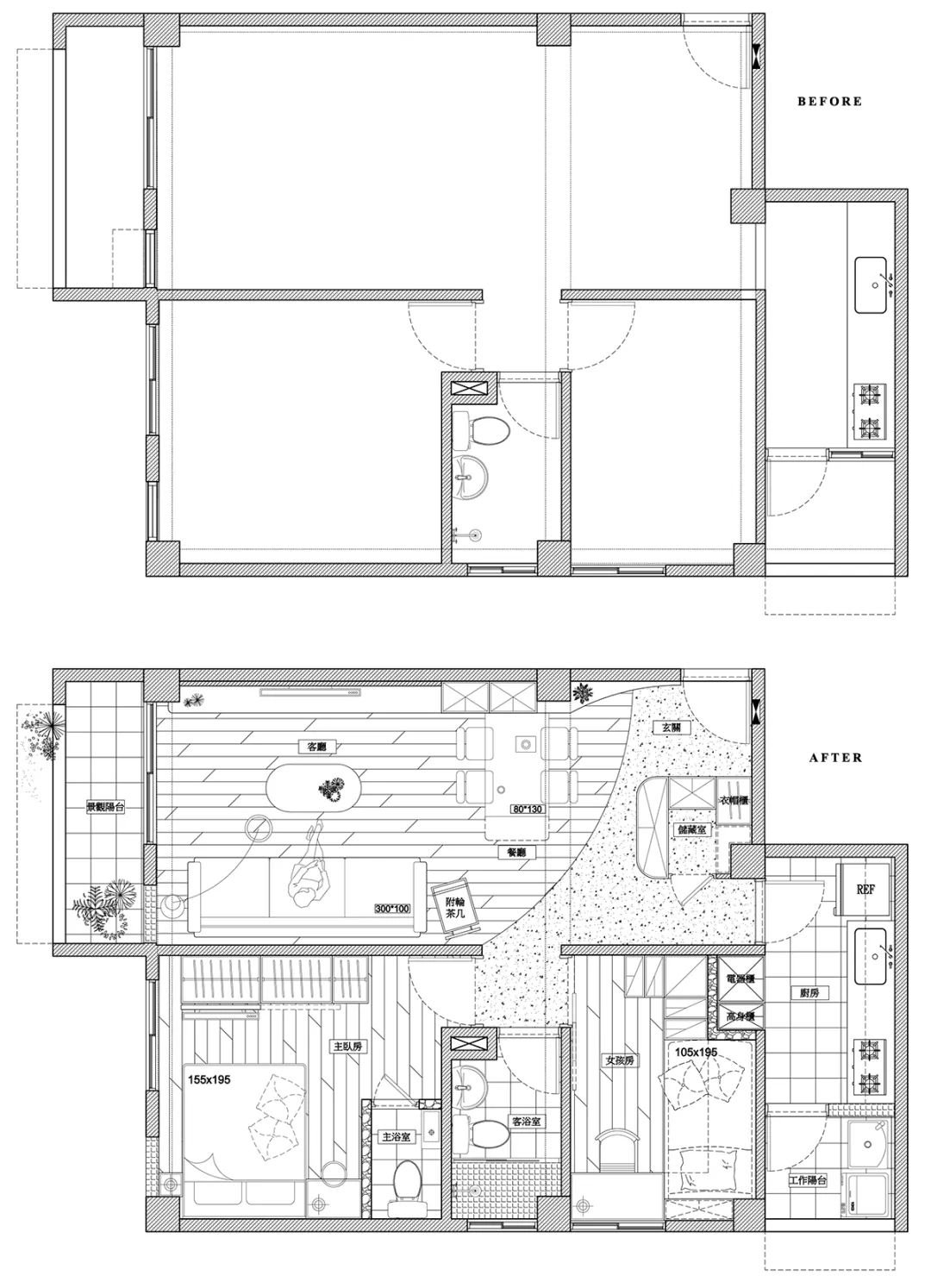
1. 玄关设计: 巧妙将衣帽柜与鞋柜退于无形 形塑了二进式进门路线 与此同时,天然水磨石踏着率真节奏 以屋梁为基础,用无缝地板连绵推开室内所有过道 同木质地材抛出一道反弧轮廓 收拢了客餐厅,分离了场景的动与静 而天花板也撑起圆拱式造型 以「回廊」意象,牵动着人与空间的关系 不只反衬出开阔屋高,更淡化了梁体份量 圆弧空间引流着视线方向 以柔和曲面过渡了突兀梁柱,朝着光的来处开放 除去立面不平整的结构体后,水泥隐约衬于底下 收束着时间、光线与风的流动 抛开装饰性的束缚,真正回归了本质 而这依循减法设计的呈现,正是屋主一家的理想光景 水泥、木料、水磨石层层堆叠 相随着弧度、曲线、直角交错出现 悄然为这片简朴宁静的基底 注入无声的趣味与层次 示意了由外而内的进程,更暗示着玄关之界 2. 储藏室设计: 分界着玄关、连动了餐厨与公私关系 随弧线拉出三向度收纳机能 既有玄关的鞋柜与衣帽柜 也以餐边柜补足了餐区所需 还拓出大容量储藏间 从此,当一道线光划过天际之时 便点亮了这面木质圆弧端景 对应着日间窗外一片景色,成就入夜后另一幅框景 所有垂直转角都被弧线柔和消弭 以柔软姿态叠映家的不同视角 设计师更运用多元立面表现 如木格栅、人字拼磁砖或自然木纹 区分出各领域之储藏用途 连同突兀电箱都在这一规划中,隐于无形 3. 客餐厅设计: 木皮也在此时,裹成一圈属于客餐厅的领界 灵活弭平了围绕厅区四周的屋梁,烘托一堂欢笑与回忆 顺应既有结构柱,收纳柜依着柱深推展而出 掀起了墙面的起伏,作为餐桌之定位 恰似将迂回路径翻转了另一向度 让地壁相之呼应,紧系着一室亦动亦静的平衡 接续着面的延展,就像回应了采光篇幅 敞开客厅朗阔无边之模样 即使简朴韵味弥漫,却焕然一屋子的年岁 揭开家人间相互陪伴的期许 水泥手感抹痕在旋身一转后 逐渐占据了配比,此一安排出于空间协调性 透过木料、水泥涂料和白色比重 主导视觉焦点与场域氛围 以灰泥质感沉淀躁动情绪,为墙后的房间私领域而转场 4、主卧&次卧
木格栅映入眼帘


一座木质量体座落回廊中央
当双脚踏上温润木地板、越过了梁柱









(转载)

