网友慕了!三代同堂如此雅致,643.5㎡自地自建透天宅
网友慕了!三代同堂如此雅致,643.5㎡自地自建透天宅
来源:空间设计(ID:kongjiansheji88)
现代风设计

每天给你分享一个案例设计

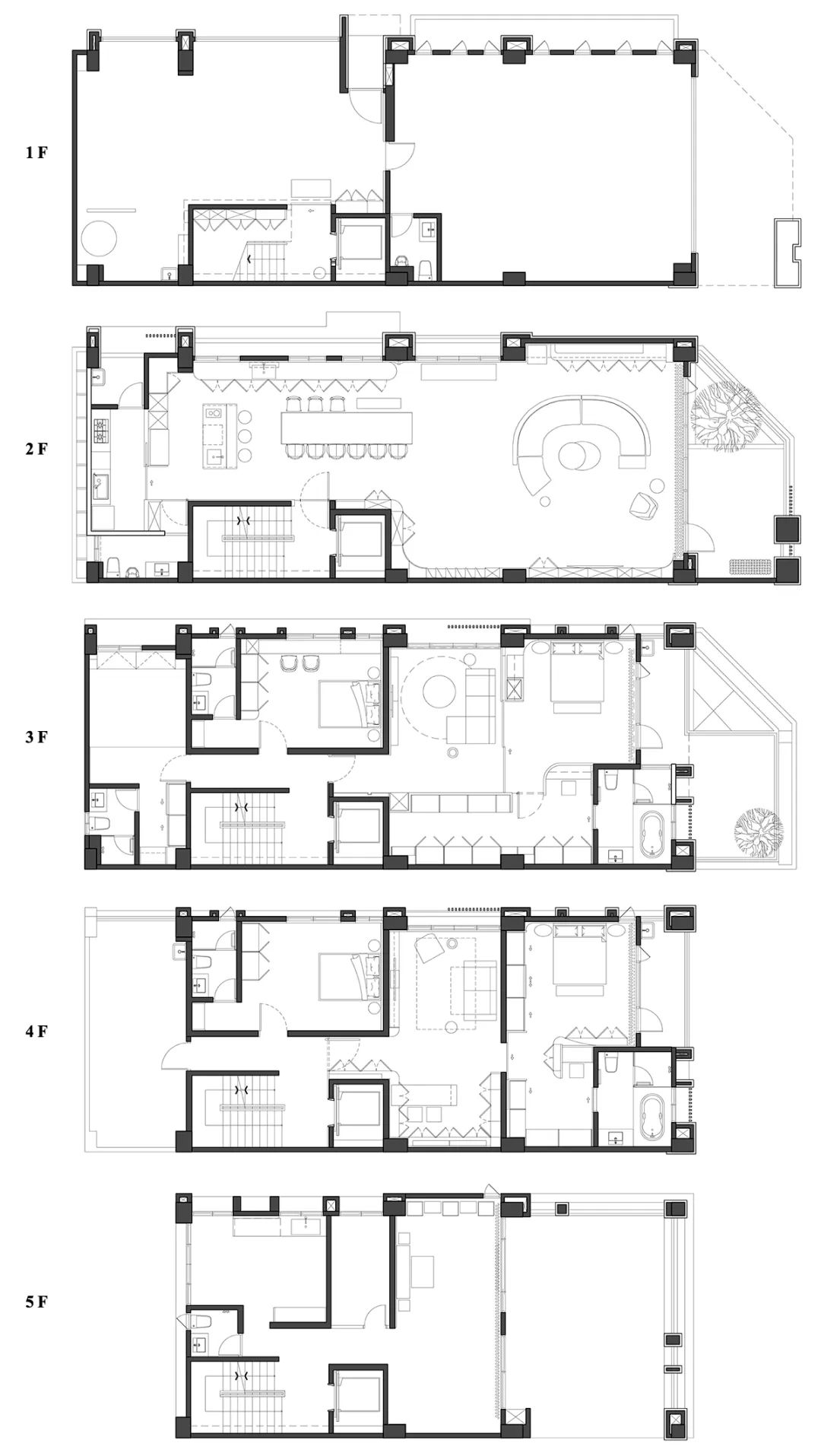
1. 一楼车库设计:
因宅邸临街,前段设为店面
后方的进出口则规划为私人车库
坡道采洗石子施作,颗粒分明的石子具有止滑效果

2. 二楼客厅设计:
严选法蓝瓷大理石铺陈主墙
大面积倾泻而下的墙面透着天然石材的肌理
如晕开的涟漪也似千山万壑中的山谷
刻意采悬空不落地,营造轻盈视感
掺入灰白蓝的交叠色彩
出色的质地造就气宇非凡的家景

大地色系的木皮连着石材一气呵成
微幅扬起的弯曲韵律感多了几分柔和
恰与几何方形的俐落空柜成为对比
摆放雅韵的茶壶后自成一方隽永景序





3. 二楼餐厅设计:
循着梯身而上,映入眼帘的即是可容纳三代同堂的长桌
这里是平日用餐与特殊节日宴客的区域
结合流理槽与IH 炉的中岛
搭载整合于壁面的电器柜与顶天柜
完整而便利的配置,利于经常下厨的大家庭



利用拉门区别出快炒区与轻食中岛区
双轴心厨区带来更灵活的料理余裕
凝聚家人间的情感也以美食拉近彼此距离
风格强烈的吊灯垂落而下,点亮温馨餐叙气氛
镶入灯带收边的巧思
除了为客餐厅划出隐形分野之外
也在造型空间语汇上注入现代风范

餐厅一侧立面整并了公共领域的电源开关
方便集中管理,由于靠近出入口的楼梯
特地采用通透的玻璃质材为媒介
好让在室内的人可随时看见是否有人进出

4. 三楼主卧设计:
融合饭店式的住宿体验,主卧配有起居室
设计师企图将空间最大化使用
保留穿透感与朗阔舒适度
特制玻璃、铁件与木头结合的拉门
并保留离地面大约50 公分的透明度,使光影自由流转


清爽白系搭衬温润奶茶色
简约素雅中带有冰原灰大理石的清透流纹点缀
圆弧修饰床头,消弭生硬感
立面内凹处增置层板,扩大陈列面积与增加储物能量
也能透过摆置不同家饰品,排列组合出变化的端景


圆角包覆的方式弱化锋利感
内部暗藏的梳化间化作打理仪容的小天地
泼墨山水大理石台面的天然细纹增添高雅气质


由梳化区旁门而入,即为长型且具备大型储物量的更衣间
采义大利进口系统柜配置而成
左右两侧顶天而下的柜体,藏纳冬夏藏衣与配件

5. 三楼和室游戏间设计:
灰阶特殊涂料镘抹于立面
临窗处设置可随性或坐或卧的卧榻区
铺设褐调木地板作为小孩游戏区域

6 四楼次卧设计:
这间主要是男孩房
设计师与房间主人访谈过后
了解到有收集公仔的习惯
遂量身打造出搜集公仔的区域
以做足但不做满的逻辑为主轴


滑动灰蓝烤漆门片
与墙面整合的储纳空间拾起生活物件
床头处铺上织纹感的深蓝色壁纸,流泄沉稳气息
选用薄板磁砖拼组成电视墙
梁下嵌入笔直线型灯带,映现现代精简俐落感

7. 四楼阅读区设计:
光泽感的科技灰为主调,
转折处巧设为圆弧修饰,避免碰撞
成排平整落地开关门柜简化视觉紊乱感
长形桌为居家办公所在


(转载)

