全上海最文艺邻里中心 / Wutopia Lab gooood
全上海最文艺邻里中心 / Wutopia Lab
“即使在最豪华的小区,阅读仍然是不可或缺、温暖人心的场所” — 俞挺

大都市里每个人都是孤岛嘛?
本项目是古北一号社区泛会所的最后一部分,泛会所已经将健身、瑜伽、SPA、泳池、咖啡简餐、儿童游乐等其他空间建设完成。不过和所有高级小区一样,但泛会所并没有能够极大发生让社区居民交流的化学作用,现实是豪华的背后总是独立家庭互不相干的孤寂。发展商最后决定建设这个邻里中心,目的是希望居民能够在这里互相认识。但什么样的场所能够吸引居民,会议,阅览室,童书馆,画廊,视听室?或者索性综合有之!这种对未来的期许以及执行中的不确定反而让建筑师有更大的空间去探索更社会化的命题:在商品房小区仅对内部开放的客观条件下,如何用建筑作为工具去激活社区中心的意义,来促进邻里的交流。
▼ 舒适的阅览空间

所有过去皆为序曲
这个位于上海古北的高端居住区,是一个物质丰饶的场所。发展商精心开发和维护,、使得建筑、空间和居住品质都有极良好的保证,小区的公共区域和整体环境有着高端物业空间传统,表现出令人感喟的优雅、精英的仪式感。建筑师以此作为设计的上句,与之鲜明对比地营造了一个柔软、放松的阅读空间作为下句。在大理石的泛会所里植入了一片知识的森林,希望居民们被温和地包裹沉浸在这个温暖人心的软性环境,使居住者在此能卸下外界物质忙碌的包袱,回归家庭邻里亲近往来的轻松气氛,愿意主动地于同在一个社区但总是彼此错开的邻居结识,促进邻里之间的交流。由此而激活了邻里社交的潜力。
▼ 阅读空间入口,温暖的木材与优雅的大理石形成对比

由于物质条件的丰裕,思想才更需要凸显其温暖人心的价值。建筑师就此创作的自由自在的阅读和艺术场所打动了业主。于是被委托重新设计这个已经完成施工图、并已开始施工的项目。在具体落实上,建筑师以最合理和最经济的方式介入设计修改,在不改变原有结构、分区、规范等设计基础的情况下,对整个空间氛围完成了脱胎换骨的改变。在入口层(上层),曲线的仿木铝板柔和地升起降落,云片状的吊灯蜿蜒穿越其中,仿佛庭院绿意被最大程度引入室内后,被提炼形成森林一般自由自在的空间感,社区居民可以在这里卸下面具而放松的交往,这似乎可以看见有如节日的欢快和愉悦。
▼ 阅读空间延续花园的温馨氛围,促进邻里交流

▼ 自然舒适的阅读区

▼ 动物形的书架“走向”亲子阅读区

▼ 亲子阅读区,动物形状的书架富有趣味

▼ 云状吊灯

作为主角的大台阶使得上下两层成为一体,不仅是人流,光线也可随着大台阶从室外有如瀑布倾泻而下进入下层。这个下层是不同于上层,它是更沉静的对偶空间,在这里,交往的需求被降低,我们希望来访者更专注的阅读、以及欣赏艺术画作,这里需要沉下心,建筑师用大面积的黑色削弱了活跃度,并在两翼进一步用黑色和灯光营造更加私人化、冥想化的空间,包括洗手间。从而造就了整个社区里最有神秘意境的洗手间。最后这个邻里中心达到了建筑师的设想,自由交往和思考。
▼ 连接上下层的阶梯,书架、楼梯和阅读区浑然一体

▼ 光线沿着台阶倾泻而下


▼ 下层黑色的阅览区和上层的木制空间形成对比


▼ 画廊

▼ 黑色隔板关闭时形成行对独立的展览空间

▼ 不同的阅读空间满足多种需求

▼ 私人阅读区,黑色营造冥想化的空间


▼ 黑色弧线形卫生间充满神秘感

▼ 高品质卫生间

人文和技术,鱼和熊掌是可以兼得的
为了实现这样一个柔软自由的场所,我们使用了大量时代前沿的数字化理念和技术,每一片曲线、企口都不尽相同的板材都通过编程设计优化,由数控机床直接加工生产,现场安装。尽管在环境塑造上,我们营造了非常人文的场所意境,但我们在设计和建造的方法上,使用的确实具有时代感的科学技术—这也是对偶。
▼ 分解轴测图,用现代技术建造舒适空间

村上春树说过“每个人都有属于自己的一片森林,也许我们从来不曾去过,但它一直在那里。迷失的人迷失了,相逢的人会再相逢。” 建筑师于是特地创造了属于这个小区居民的森林。
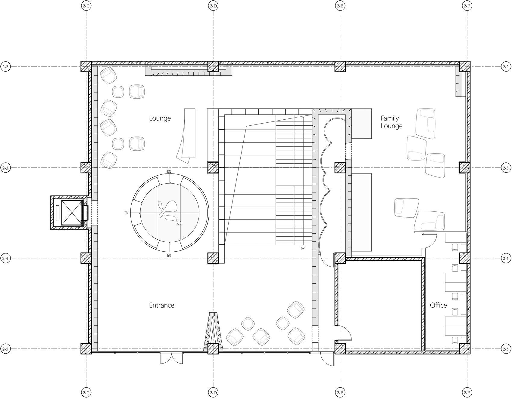
▼ 一层平面图

▼ 底层平面图

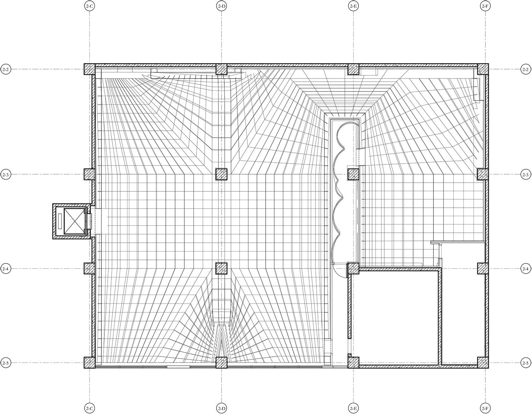
▼ 吊顶平面图

▼ 剖面图


主持建筑师:俞挺
项目建筑师:张朔炯
地点:上海闵行区
面积:1000 m2
材料:仿木铝材,白橡木,乳胶漆,亚克力,实木复合地板
项目年份:2016-2017
设计公司:Wutopia Lab
设计咨询:一栋
施工图:(略)
灯光设计:格瑞照明
特殊灯光设计:堂堂的白云(设计:俞挺 张朔炯)
摄影师:CreatAR
(转载)

